STEIDELE Anschluss-Schrank A 80
Art.Nr.: 882884
Kurzfristig lieferbar Lieferzeit: 7-14 Arbeitstage
Anschluss-Schrank A 80
Hersteller: STEIDELE
Hersteller-Art.Nr.: 2000
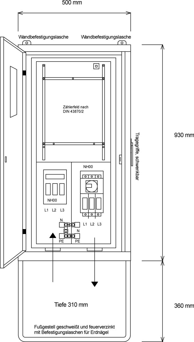
Gehäuse aus verzinktem Stahlblech mit schwenkbaren Traggriffen, verschließbar mittels Vorhängeschloss (bauseits), Lackierung RAL 2004 orange, Fußgestell feuerverzinkt mit Befestigungslaschen für Erdnägel. Lieferung erfolgt einschl. Sicherungszubehör und Fußgestell
| Merkmale: | |
| Ausführung | Anschlussschrank |
| Bemessungsspannung | 400 V |
| Bemessungsstrom | 80 A |
| Anschlussleistung | 55 kVA |
| Anzahl der Zählerfelder | 1 |
| Hauptschalter | NH00 |
| Hauptschalter-Bemessungsstrom | 80 A |
| Schutzart (IP) | IP54 |
| Breite | 500 mm |
| Höhe | 1290 mm |
| Tiefe | 310 mm |
Steidele-Stromverteiler GmbH
Winterbruckenweg 24
86316 Friedberg-Derching
Land: DE
E-Mail: service@steidele-stromverteiler.de
www.steidele-stromverteiler.de



























