VAILLANT Kompaktgerät Brennwert VSC 146/4-5 90 E
Art.Nr.: 828143
Kurzfristig lieferbar Lieferzeit: 7-14 Arbeitstage
Kompaktgerät Brennwert VSC 146/4-5 90 E
Hersteller: VAILLANT
Hersteller-Art.Nr.: 0010015596
EAN: 4024074699614
Ursprung: Deutschland
Zolltarif: 85169000
ecoCOMPACT VSC 146/4-5 90
Gas-Kompaktgerät Brennwert
Kombinationsgerät für Heizung und
Warmwasser
Produktvorteile
- GEG-Sicherheit: Betrieb mit bis zu
100% Bio-Erdgas serienmäßig möglich
- Hocheffizienz-Pumpen für Heizung und
Speicherladung
- Elektronischer Gas-Luft-Verbund
- Multi-Sensorik-System
- Alle Komponenten/Zubehöre in einem
Gehäuse
- Split Mounting Concept
Ausstattung
- Integrierter WW-Schichtladespeicher
(90 Liter)
- Edelstahl-Sekundär-Wärmetauscher
- Hocheffizienz Lade- und Umwälzpumpe
- Vorrangumschaltventil, Drucksensor
- 15 Liter ADG
- Integral-Kondensations Wärmetauscher
aus Edelstahl
- Speicherregelung integriert
- DIA-System mit beleuchtetem
Symboldisplay und Einbaumöglichkeit
eines witterungsgeführten
Heizungsreglers calorMATIC VRC 700
Gasart E
Nennleistungsbereich
- 40/30 Grd.C 3,4 - 15,2 kW
- 60/40 Grd.C 3,3 - 14,7 kW
- Speicherladeleistung 16,0 KW
- Max. Wärmebelast. Speicherl. 16,3 KW
- Normnutzungsgrad 98% (Hs)/109% (Hi)
- Modulationsbereich von 20 bis 100 %
- Vorlauftemperatur max. 85 Grd.C
- Elektroanschluss 230V/50Hz
- Max. Elektr. Leistungsaufnahme 70 W
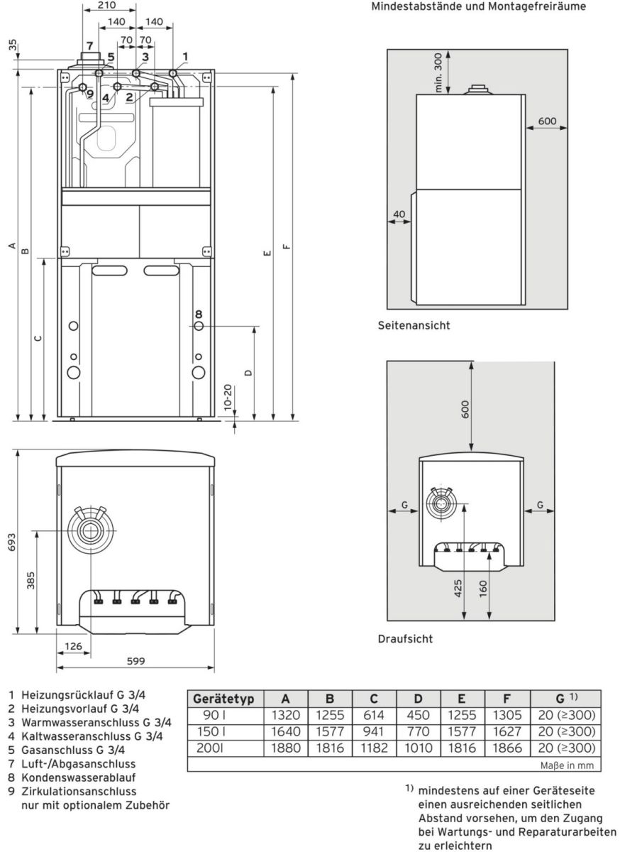
- Vor-/Rücklaufanschluss Rp 3/4
- Kalt- /Warmwasseranschlss Rp 3/4
- Gasanschluss Rp 3/4
- Luft-/Abgasanschluss 60/100 mm
- Gewicht (leer) 106 kg
- Speicher-Gesamtinhalt 90 l
- Leistungskennzahl NL 1,6
- Höhe/Breite/Tiefe 1320/595/693 mm
CE PIN CE-1312CO5870
Gasgerätekategorie I2ELL, I3P
Jahreszeitbedingte Raumheizungs-
Energieeffizienzklasse A
(Spektrum A+++ bis D)
Jahreszeitbedingte Warmwasserbereitungs-
Energieeffizienzklasse A
(Spektrum A+ bis F)
| Merkmale: | |
| Material Wärmetauscher | rostfreier Stahl |
| Geschlossene Ausführung | ja |
| Betrieb als offene (Luftzufuhr) Ausführung möglich | ja |
| Kondensierend | ja |
| Kesselsystem | Flammrohr |
| Nennleistung 80-60 °C | 14 kW |
| Nennleistung 50-30 °C | 15,2 kW |
| Nennlast oberer Wert | 15,2 kW |
| Nennlast unterer Wert | 3 kW |
| Einstellbare Heizleistung | ja |
| Medium | Wasser |
| Bei Lieferung komplett zusammengebaut | nein |
| Brennerregulierung hoch/niedrig | nein |
| Brennerregulierung modulierend | ja |
| Max. Zulauftemperatur (Arbeitstemperatur) | 75 °C |
| Min. Arbeitsdruck | 0,5 bar |
| Max. Arbeitsdruck | 3 bar |
| Wirkungsgrad | 108 % |
| Max. Gasvordruck | 25 mbar |
| Min. Gasvordruck | 17 mbar |
| Speicher warmes Trinkwasser | 89 l |
| Frequenz | 50 Hz |
| Eingebauter Füll-/Entleerungshahn | ja |
| Eingebaute Pumpenschaltung | ja |
| Eingebaute Zugunterbrechung | nein |
| Eingebaute Zirkulationspumpe | nein |
| Eingebautes Manometer | nein |
| Eingebauter witterungsanhängiger Regler | nein |
| Eingebautes Ausdehnungsgefäß | ja |
| Eingebautes Überdruckventil | ja |
| Höhe | 1320 mm |
| Breite | 599 mm |
| Tiefe | 693 mm |
| Anschluss Vorlauf | Außengewinde |
| Rohraußendurchmesser Zulauf | 26,44 mm |
| Anschluss Rücklauf | Außengewinde |
| Rohraußendurchmesser Rücklauf | 26,44 mm |
| Anschluss Kraftstoff | Außengewinde |
| Rohraußendurchmesser Kraftstoff | 26,44 mm |
| Nenndurchmesser Kanal Luftzufuhr | 100 mm |
| Anschluss Luftzufuhr | Einschubende |
| Nenndurchmesser Kanal Rauchgasabfuhr | 60 mm |
| Anschluss Rauchgasabfuhr | Einschubende |
| Anschluss kaltes Trinkwasser | Außengewinde |
| Rohraußendurchmesser kaltes Trinkwasser | 26,44 mm |
| Anschluss Warmwasser | Außengewinde |
| Rohraußendurchmesser warmes Trinkwasser | 26,44 mm |
| Kondensatanschluss | sonstige |
| Zapfprofil | XL |
| Energieeffizienzklasse Raumheizung | A |
| Energieeffizienzklasse Warmwasser | A |
| Energieeffizienz Warmwasser | 98 % |
| Nutzwärme-Abgabe bei Nennwärmeabgabe in Betrieb bei hoher Temperatur (P4) | 14,01 kW |
| Effizienz-Nutzen bei Nennwärmeemission bei hoher Temperatur (n4) | 86,85 % |
| Zusätzlicher Stromverbrauch bei Volllast (elmax) | 0,07 kW |
| Zusätzlicher Stromverbrauch im Standby-Modus (Psb) | 0,002 kW |
Vaillant Deutschland
GmbH & Co. KG
Berghauser Str. 40
42859 Remscheid
Land: DE
E-Mail: info@vaillant.de
www.vaillant.de



























