Sie sind hier: Startseite » Rund ums Haus » Warmwassergeräte » Vaillant » Paket 1.444/2 auroCOMPACT 0010029764
VAILLANT Paket 1.444/2 auroCOMPACT 0010029764
Art.Nr.: 827178
Kurzfristig lieferbar Lieferzeit: 7-14 Arbeitstage
Paket 1.444/2 auroCOMPACT 0010029764
Hersteller: VAILLANT
Hersteller-Art.Nr.: 0010029764
EAN: 4024074865132
Ursprung: Deutschland
Zolltarif: 85169000
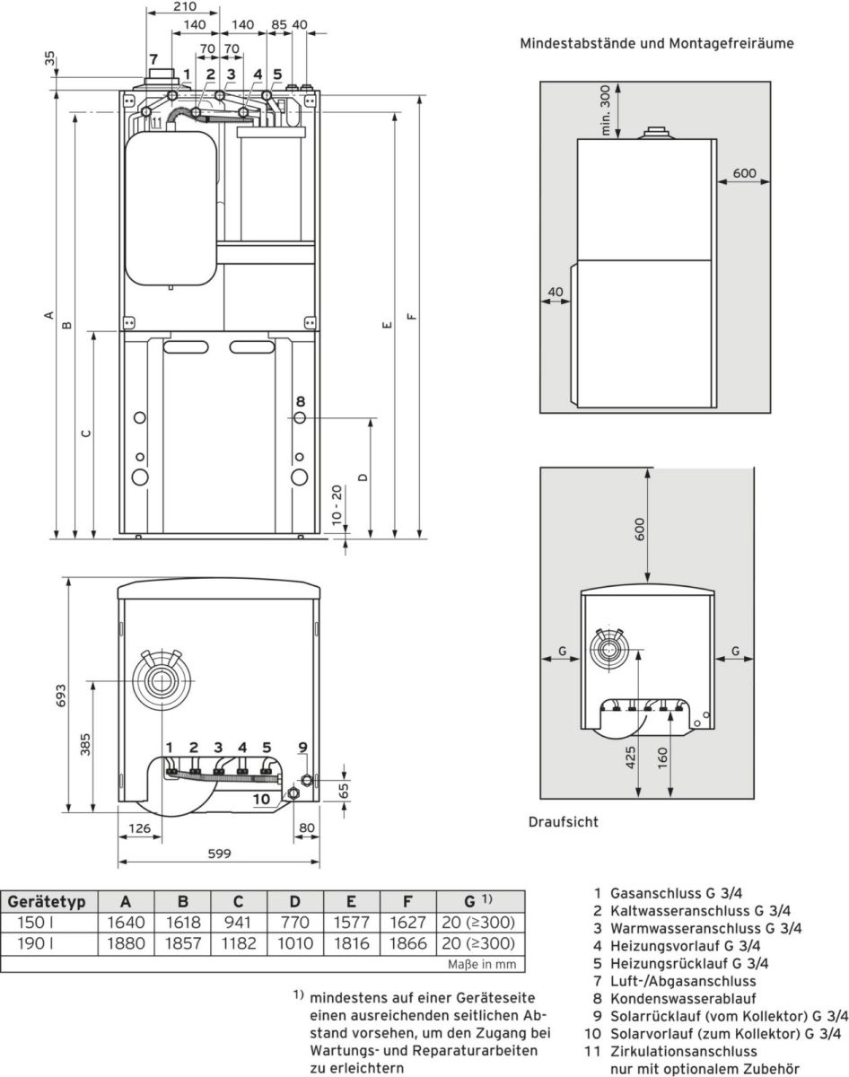
Paket 1.444/2 auroCOMPACT
VSC S 206/4-5 150 E, VRC 700/6, Konsole
1x 0010015612 Gas-Kompaktgerät
auroCOMPACT VSC S 206/4-5 150 E
Brennwerttechnik
1x 0020266797 Heizungsregler multiMATIC
VRC 700/6 1 HK, witterungsgeführt
1x 0020170496 Anschlusskonsole flexibel
f. VSC/VCC/VSCS/VSC D 4-5
1x 302498 Solar-System Hochleistungs-
Frostschutzmittel 20 L
Vaillant Deutschland
GmbH & Co. KG
Berghauser Str. 40
42859 Remscheid
Land: DE
E-Mail: info@vaillant.de
www.vaillant.de
Bitte warten
Stellen Sie uns eine Frage zu diesem Artikel. Wir Antworten Ihnen per E-Mail.
Das könnte Sie auch interessieren:
Top Seller aus dieser Kategorie:
Zuletzt angesehene Artikel:
-
Formteile Kabelrinnen Steckverbindung

























